
Ulica: | Jarmočná |
---|---|
Obec: | Košice-Juh |
Okres: | Košice IV |
Kraj: | Košický kraj |
Druh: | Objekty |
Typ: | Prenájom |
Typ objektu: | Sklad |
RealityKolesár prenajíma SKLADOVÚ HALU 179,33 m2 + vstavok kancelária 77,12 m2 na Jarmočnej ulici v KE JUH
Objekt sa nachádza v areáli v dobrej dostupnosti pri hlavnej ceste, hneď za železničným priechodom a malej zastávky Jantárová. Prístup aj nákladnou dopravou bez obmedzenia, prístup MHD. Areál je strážený kamerovým systémom, vstup 24/7. Možnosť spojiť so susedným skladom.
IS: voda, plyn, kanalizácia, mobilný internet
Všetky energie majú podružné meranie: spotreba podľa skutočnej spotreby ( voda a elektrina sú merané samostatne, kúrenie).
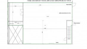
1.NP / sklad
prenájom : 7,50 € bez DPH / m2 / mesiac
výmera : 179,33 m2
Hala: oceľová konštrukcia s väzníkovou konštrukciou prestrešenia, obvodový plášť je zo sendvičových panelov PIR hr 100 mm, strecha – strešný panel PIR hr 120 mm. Vstavok je zhotovený na oceľ konštrukcii a ZB doske z SDK deliacich priečok a zaveseného SDK podhľadu so zateplením, má jednu vstupnú bránu, výška haly po väzníky 6,3 m, pancierová podlaha
Skladová plocha 153,50 m2, z toho cca 77 m2 s výškou stropu 3,00 m a zvyšok s výškou 6,30 m, oddelená hygiena 4,41 m2 ( WC, výlevka a umývadlo ) + radiátorové kúrenie, oddelený sklad cca 21,5 m2 výška stropu 3,00 m + radiátorové kúrenie. Internet cena : 29 € bez DPH / mesiac
2.NP / vstavok kancelária
prenájom : 10,50 € bez DPH / m2 / mesiac
výmera : 77,12 m2
Vstavok : schodisko do predajne na 2.NP, pod ktorým je miestnosť – archív
Vstavok: predajňa, kancelária a kuchynka
výška stropu cca 2,80 m
Ostatné plochy: 3 parkovacie miesta pre osobné autá,
Cena za 1 parkovacie miesto 60,00 € bez DPH / mesiac
Možnosť Billboardu 2,4 x 5,0 m = 12 m2, Cena za billboard: 100,-€ + DPH
Cena spolu sklad + kancelária: 2370,-€/ mesačne bez DPH.
V prípade záujmu volajte, píšte 0907 915 475 – Tomáš Kolesár, kolesar@realitykolesar.sk /REALITY KOLESÁR 24 ROČNÁ PRAX/.
konateľ, maklér